Vyplňte prosím údaje níže a brzy vás budeme kontaktovat.
zanechte svůj e-mail a telefon a my vás kontaktujeme jako první jakmile bude v prodeji
Prodej penthousů aktuálně připravujeme. Můžete nám však zanechat váš kontakt, abychom se Vám mohli ozvat, jakmile bude prodej zahájen.
Vyplňte prosím údaje níže a brzy vás budeme kontaktovat.
Rezervační poplatek ve výši 150.000 Kč včetně DPH je splatný do 5 dnů od uzavření rezervační smlouvy. V případě uzavření smlouvy o smlouvě budoucí kupní bude o částku rezervačního poplatku snížena 1. splátka kupní ceny.
| splátka | splatnost kupní ceny | částka z kupní ceny |
|---|---|---|
| 1. splátka | do 7 dnů od uzavření smlouvy o smlouvě budoucí kupní | 20 % včetně DPH |
| 2. splátka | do 15 dnů od doručení dokumentů dokládajících podání návrhu na vklad prohlášení vlastníka do katastru nemovitostí | 40 % včetně DPH |
| 3. splátka | do 15 dnů od vydání kolaudačního souhlasu | 40 % včetně DPH |
Obsazené
Rezervace
V jednání
Volné
Připravujeme
Připravujeme
stav
2. patro
podlaží
A2.12
číslo bytu
3+kk
dispozice
59.2 m2
výměra
Připravujeme
cena vč. DPH
--
cena vč. DPH
cena vč. DPH
Q1 2026
cena vč. DPH
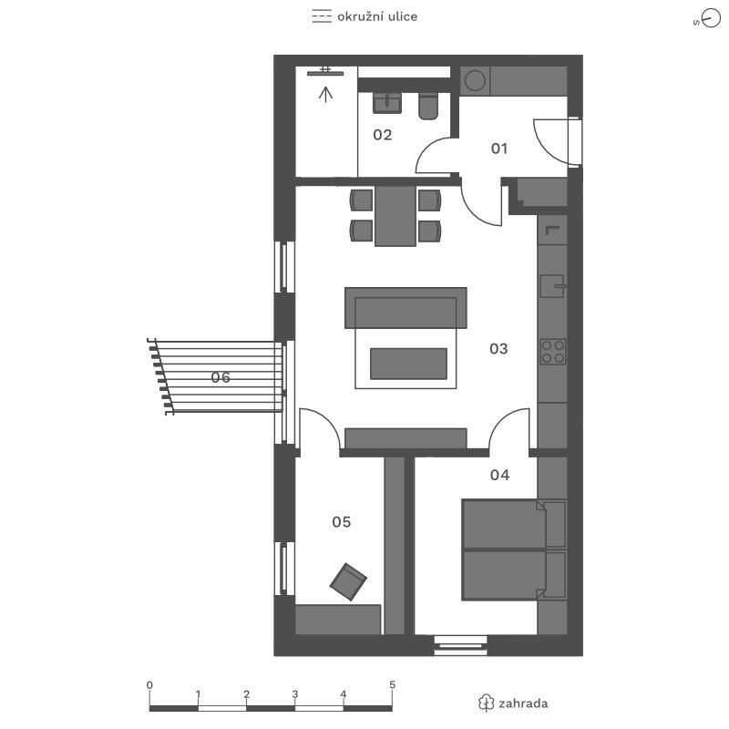
| č. pokoje | název | plocha |
|---|---|---|
| 01 | chodba | 5,8 m² |
| 02 | koupelna | 3,3 m² |
| 03 | komora | 2,6 m² |
| 04 | obytný prostor | 28,2 m² |
| 05 | ložnice | 9,8 m² |
| 06 | pracovna | 9,5 m² |
| Užitná plocha bytu | 59,2 m² | |
| 07 | terasa | 3 m² |
K bytové jednotce je nutno koupit garážové stání a sklep.
Poslední fáze prodejů bude spuštěna 1. kvartál 2026. Pokud chcete být přednostně kontaktování, zaregistrujte se.
1. patro
podlaží
A1.01
číslo bytu
4+kk
dispozice
81 m2
výměra
--
Q1 2026
cena vč. DPH
Prodáno
Rezervace
Volné
V jednání
Připravujeme
Připravujeme
stav
Nedostupné
1. patro
podlaží
A1.02
číslo bytu
3+kk
dispozice
88.6 m2
výměra
--
Q1 2026
cena vč. DPH
Prodáno
Rezervace
Volné
V jednání
Připravujeme
Připravujeme
stav
Nedostupné
1. patro
podlaží
A1.03
číslo bytu
3+kk
dispozice
91.3 m2
výměra
--
Q1 2026
cena vč. DPH
Prodáno
Rezervace
Volné
V jednání
Připravujeme
Připravujeme
stav
Nedostupné
1. patro
podlaží
A1.04
číslo bytu
4+kk
dispozice
116.8 m2
výměra
--
Q1 2026
cena vč. DPH
Prodáno
Rezervace
Volné
V jednání
Připravujeme
Připravujeme
stav
Nedostupné
1. patro
podlaží
A1.N1
nebyt. prostor
--
dispozice
44.7 m2
výměra
--
Q1 2026
cena vč. DPH
cena bez DPH
Prodáno
Rezervace
Volné
V jednání
Připravujeme
Připravujeme
stav
Nedostupné
2. patro
podlaží
A2.01
číslo bytu
3+kk
dispozice
72.7 m2
výměra
--
Q1 2026
cena vč. DPH
Prodáno
Rezervace
Volné
V jednání
Připravujeme
Připravujeme
stav
Nedostupné
2. patro
podlaží
A2.02
číslo bytu
1+kk
dispozice
28.6 m2
výměra
--
Q1 2026
cena vč. DPH
Prodáno
Rezervace
Volné
V jednání
Připravujeme
Připravujeme
stav
Nedostupné
2. patro
podlaží
A2.03
číslo bytu
1+kk
dispozice
28.5 m2
výměra
--
Q1 2026
cena vč. DPH
Prodáno
Rezervace
Volné
V jednání
Připravujeme
Připravujeme
stav
Nedostupné
2. patro
podlaží
A2.04
číslo bytu
2+kk
dispozice
57.7 m2
výměra
--
Q1 2026
cena vč. DPH
Prodáno
Rezervace
Volné
V jednání
Připravujeme
Připravujeme
stav
Nedostupné
2. patro
podlaží
A2.05
číslo bytu
2+kk
dispozice
58.5 m2
výměra
--
Q1 2026
cena vč. DPH
Prodáno
Rezervace
Volné
V jednání
Připravujeme
Připravujeme
stav
Nedostupné
2. patro
podlaží
A2.06
číslo bytu
2+kk
dispozice
58.2 m2
výměra
--
Q1 2026
cena vč. DPH
Prodáno
Rezervace
Volné
V jednání
Připravujeme
Připravujeme
stav
Nedostupné
2. patro
podlaží
A2.07
číslo bytu
3+kk
dispozice
76.5 m2
výměra
--
Q1 2026
cena vč. DPH
Prodáno
Rezervace
Volné
V jednání
Připravujeme
Připravujeme
stav
Nedostupné
2. patro
podlaží
A2.08
číslo bytu
2+kk
dispozice
43.6 m2
výměra
--
Q1 2026
cena vč. DPH
Prodáno
Rezervace
Volné
V jednání
Připravujeme
Připravujeme
stav
Nedostupné
2. patro
podlaží
A2.09
číslo bytu
1+kk
dispozice
34.8 m2
výměra
--
Q1 2026
cena vč. DPH
Prodáno
Rezervace
Volné
V jednání
Připravujeme
Připravujeme
stav
Nedostupné
2. patro
podlaží
A2.10
číslo bytu
2+kk
dispozice
42.6 m2
výměra
--
Q1 2026
cena vč. DPH
Prodáno
Rezervace
Volné
V jednání
Připravujeme
Připravujeme
stav
Nedostupné
2. patro
podlaží
A2.11
číslo bytu
2+kk
dispozice
42.6 m2
výměra
--
Q1 2026
cena vč. DPH
Prodáno
Rezervace
Volné
V jednání
Připravujeme
Připravujeme
stav
Nedostupné
2. patro
podlaží
A2.12
číslo bytu
3+kk
dispozice
59.2 m2
výměra
--
Q1 2026
cena vč. DPH
Prodáno
Rezervace
Volné
V jednání
Připravujeme
Připravujeme
stav
Nedostupné
3. patro
podlaží
A3.01
číslo bytu
3+kk
dispozice
73 m2
výměra
--
Q1 2026
cena vč. DPH
Prodáno
Rezervace
Volné
V jednání
Připravujeme
Připravujeme
stav
Nedostupné
3. patro
podlaží
A3.02
číslo bytu
2+kk
dispozice
58.2 m2
výměra
--
Q1 2026
cena vč. DPH
Prodáno
Rezervace
Volné
V jednání
Připravujeme
Připravujeme
stav
Nedostupné
3. patro
podlaží
A3.03
číslo bytu
2+kk
dispozice
58.7 m2
výměra
--
Q1 2026
cena vč. DPH
Prodáno
Rezervace
Volné
V jednání
Připravujeme
Připravujeme
stav
Nedostupné
3. patro
podlaží
A3.04
číslo bytu
2+kk
dispozice
58.6 m2
výměra
--
Q1 2026
cena vč. DPH
Prodáno
Rezervace
Volné
V jednání
Připravujeme
Připravujeme
stav
Nedostupné
3. patro
podlaží
A3.05
číslo bytu
3+kk
dispozice
76.9 m2
výměra
--
Q1 2026
cena vč. DPH
Prodáno
Rezervace
Volné
V jednání
Připravujeme
Připravujeme
stav
Nedostupné
3. patro
podlaží
A3.06
číslo bytu
2+kk
dispozice
43.9 m2
výměra
--
Q1 2026
cena vč. DPH
Prodáno
Rezervace
Volné
V jednání
Připravujeme
Připravujeme
stav
Nedostupné
3. patro
podlaží
A3.07
číslo bytu
1+kk
dispozice
34.8 m2
výměra
--
Q1 2026
cena vč. DPH
Prodáno
Rezervace
Volné
V jednání
Připravujeme
Připravujeme
stav
Nedostupné
3. patro
podlaží
A3.08
číslo bytu
2+kk
dispozice
43.1 m2
výměra
--
Q1 2026
cena vč. DPH
Prodáno
Rezervace
Volné
V jednání
Připravujeme
Připravujeme
stav
Nedostupné
3. patro
podlaží
A3.09
číslo bytu
2+kk
dispozice
42.8 m2
výměra
--
Q1 2026
cena vč. DPH
Prodáno
Rezervace
Volné
V jednání
Připravujeme
Připravujeme
stav
Nedostupné
3. patro
podlaží
A3.10
číslo bytu
3+kk
dispozice
58.7 m2
výměra
--
Q1 2026
cena vč. DPH
Prodáno
Rezervace
Volné
V jednání
Připravujeme
Připravujeme
stav
Nedostupné
4. patro
podlaží
A4.01
číslo bytu
5+kk
dispozice
130.6 m2
výměra
Na vyžádání
cena vč. DPH
Prodáno
Rezervace
Volné
V jednání
Připravujeme
Připravujeme
stav
Nedostupné
4. patro
podlaží
A4.02
číslo bytu
4+kk
dispozice
114.9 m2
výměra
Na vyžádání
cena vč. DPH
Prodáno
Rezervace
Volné
V jednání
Připravujeme
Připravujeme
stav
Nedostupné
4. patro
podlaží
A4.03
číslo bytu
3+kk
dispozice
89.2 m2
výměra
Na vyžádání
cena vč. DPH
Prodáno
Rezervace
Volné
V jednání
Připravujeme
Připravujeme
stav
Nedostupné
4. patro
podlaží
A4.04
číslo bytu
4+kk
dispozice
110.6 m2
výměra
Na vyžádání
cena vč. DPH
Prodáno
Rezervace
Volné
V jednání
Připravujeme
Připravujeme
stav
Nedostupné
Vyplňte prosím údaje níže a brzy vás budeme kontaktovat.
Vyplňte prosím údaje níže a brzy vás budeme kontaktovat.
Klientské centrum
tř. Kosmonautů 1221/2a
1. podlaží
Olomouc 779 00
Veškeré (zejména obchodní, technické a reklamní) materiály, dokumenty, údaje, modely, vizualizace, jiná vyobrazení a jiné podklady prezentované na těchto webových stránkách jsou pouze ilustrační, nejsou závazné a nepředstavují nabídku ani návrh na uzavření smlouvy ve smyslu zákona č. 89/2012 Sb., občanský zákoník, v platném znění, přičemž developer si zároveň vyhrazuje právo na jejich změnu.